
Natanael Garcia
Arquitecto
portafolio
Menú
Galería residencias de obra
RV
consultorio
Proyecto de interiores
Propuesta de interiores para un consultorio dental en un espacio de 27.50 m2, dentro de Hospital MAC Puebla.

Planimetria 2D en AutocaD
Modelado 3D en Sketchup
Ambientado y renderizado en LUMION
Para este proyecto se realiza la propuesta a partir de mobiliario existente y complementarlo para obtener el mejor desempeño de las actividades dentro del espacio.
El inmueble ya cuenta con el área de baño establecido, además del cerámico del piso, por lo cual, este ya se toma como parte de la paleta de colores que se manejará.

La configuración del espacio se basa en disfrutar desde la llegada al inmueble de una sala de estar acogedora, buscando eliminar esa inquietud que se llega a provocar con la percepción que se tiene de un “consultorio dental”
Así como una vez entrando al área de consulta se utiliza el mismo tono de la sala de estar, pero que con la iluminación natural de este espacio, adquiere una connotación diferente, además de eliminar el clásico color blanco clínico, y que no por eso, se sigue manejando una visión limpia y profesional del lugar.

_natanaelgr
Depto
33
Proyecto de interiores
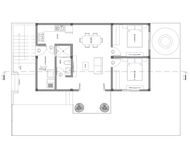
Propuesta de interiores para un departamento de 53.50 m2 que cuenta con 2 recamaras, espacio de sala-comedor-cocina y 1 baño completo.

Planimetria 2D en AutocaD
Modelado 3D en Sketchup
Ambientado y renderizado en LUMION
Recorrido virtual en LUMION
Para este departamento de apenas 53.00m2 se desea optimizar el espacio por medio del diseño de los muebles implicados en el desarrollo de las actividades diarias.
Con previo dialogo con el cliente con respecto a gustos y rutinas, se determina un espacio minimalista con los recursos necesarios para tener todo en almacenamiento y orden.


El inmueble inicialmente será ocupado por una sola persona, la cual pasa el mayor tiempo del día fuera de él, por lo cual, se le da énfasis a su recámara y la sala de estar, que son los espacios que mas ocupa al finalizar su día.
Para el comedor se le propone una pequeña mesa para conservar lo mayor posible la libre circulación y una pequeña cocina, que no por el tamaño carezca de lo necesario.
Se propone un mueble de TV, que será el protagonista de la estancia, con un entablillado en el respaldo de la televisión para poder ocultar las instalaciones.
Al lado de ello se maneja una serie de repisas con un fondo en espejo ahumado en tono cobre, para darle profundidad al mismo, complementando estos con una luz led en tono cálido.
Y por último, alrededor se propone los espacios de almacenamiento necesarios.





Sala - Comedor


Barra/Desayunador
Se maneja carpintería en tono blanco al alto brillo, y en tono madera natural, complementado con mobiliario en tonos derivados de la paleta de color establecida.


Para la cocina se proponen tres cuerpos, un gabinete superior de almacenamiento, un gabinete inferior de servicio de tarja y almacenamiento, y un tercer gabinete inferior con almacenamiento y parrilla.


Barra/Desayunador
Dentro del área de la cocina se maneja un tono de pintura mas oscuro para contrastar con la sala-comedor, ademas de que este ayuda a que el refrigerador y horno de microondas se sientan como parte del mismo espacio.
A esto se le agrega un recubrimiento ceramico con un diseño que le inyecta dinamismo y lo complementa unas repisas sobre el gabinete de la parilla.

Para la recamara el protagonismo lo juega la cama, la cual se le maneja un respaldo similar al entablillado utilizado en el mueble de sala, pero aquí con un tratamiento diferente que le de esa comodidad de respaldo, a este se le agrega luz que puede ser utilizada en la noche como luz auxiliar. Añadido, se proponen mesas laterales que de igual manera se pueden llegar a utilizar como mesas de trabajo estando en cama.
Y como complemento un mueble de TV que enmarque a este mismo y ayude ocultando las instalaciones necesarias.



Se maneja un closet en tono blanco para que en percepción se desvanezca y no cause ruido a la vista, pero dejando estantes sin cubrir para el almacenamiento de ropa, accesorios y gorras que al ser del gusto del usuario, prefiere darles su protagonismo

Barra/Desayunador

Y por último, para el baño se busco un ambiente de relajación que para finalizar el día ayude a calmar el cuerpo y descansar.

Barra/Desayunador

MO
Kitchen
Proyecto de interiores
Propuesta de interiores para remodelación de cocina.

Planimetria 2D en AutocaD
Modelado 3D en Sketchup
Ambientado y renderizado en LUMION
Para este proyecto se realiza la propuesta a partir de mobiliario existente (refrigerador y estufa), a los cuales habría que agregar la Tarja para obtener el triangulo básico de funcionamiento en la cocina.
A este esquema funcional, se adhiere un vértice mas, que sería hacia una barra que conecta al comedor existente.


_natanaelgr
A la distribución se le agrega espacio necesario a cada elemento básico del funcionamiento, y así obtener lugares de almacenamiento y espacio de trabajo, buscando que estas puedan funcionar utilizándolas al mismo tiempo sin problema.
Además se consideran estantes de exhibición, para los utensilios y demás elementos utilizados en esta cocina, que busca darles protagonismo a estas piezas que han sido elaboradas de manera artesanal y así buscar una cocina tradicional con su toque contemporáneo.
Casa
Ferney
Proyecto de interiores
Propuesta de interiores para el taller Interiorismo Cotidiano impartido por el despacho DOS VEINTINUEVE


Planimetria 2D en AutocaD
Modelado 3D en Sketchup
Ambientado y renderizado en LUMION
Para el ejercicio del taller se asigna una familia influencer, que habita en Manhattan, esta misma se considera maximalista y con afinidad del uso de color.
Se asigna una planta arquitectónica base, para a partir de ahí y con la investigación hacia el cliente, realizar el programa de necesidades y solucionarlo espacialmente.






Considerando que en existencia se tendría el ladrillo aparente y la duela de madera como en los clásicos pisos neoyorkinos; A partir de una paleta de colores derivada de los gustos y aficiones de los clientes, se realiza la propuesta de mobiliario, acabados, carpinterías y accesorios de decoración, descendiente a esos mismos tonos.

Cocina
Teniendo en cuenta que la cocina/desayunador es el punto donde se inicia el día, se toma como punto de partida para iniciar la configuración de los tonos.
La familia expresa que es de su agrado la cocina en blanco, para esto se propone diferentes materiales en ese tono que se puedan mezclar y no tener un lugar monotono, y complementarlo con tonos de color amarillo vibrante que al iniciar el día energice al usuario.







01: Casa Roxa, 1997.
02: Casa Ópera, 1685

Barra/Desayunador
Se maneja carpintería en tono blanco al alto brillo, mármol en tono blanco con betas grisáceas y aperladas, así como también un cerámico blanco con textura de enladrillado.
Además los muebles de refrigerador y hornos en sus tonos aparentes para que igual luzca su materialidad, así como en la pared izquierda un muro/pizarrón para las notas del día.


Para el comedor, se observa mas expresada la paleta de colores propuesta para la familia.
Se propone una serie de lámparas al centro para darle el énfasis al comedor, sobre la cocina, así como una mezcla de sillas, macetas, carpetas con patrones, acentos en dorado, todo esto con elementos fáciles de cambiar y así no perder la contemporaneidad del espacio con el tiempo








Comedor
Se plantea al fondo del comedor un nicho de repisas para la exhibición de arte, recuerdos, pinturas y demás que la familia colecciona, además de vegetación de su agrado, complementado con el mismo mármol ocupado en la cocina y así conservar la correlación de los espacios, además de un entablillado en la parte inferior que sirve de almacenamiento oculto, agregado a lo que sucede en todo el espacio en general se busca liberar el gusto maximalista de los usuarios y lo personalicen la infinidad de veces que deseen.



Comedor

Casa
Gálvez
Diseño de casa habitación
En un predio de 10.00m x 10.00m se proyecta una casa para una familia joven, que desea una casa íntima a pie de calle, sin perder la visibilidad por completo del exterior.
Planimetria 2D en AutocaD
Modelado 3D en Sketchup
Ambientado y renderizado en LUMION
Recorrido virtual en LUMION
Es por ello que para la Planta baja se maneja una pequeña jardinera que separe el área interior con lo exterior, pero que a través de la celosía de tabique rojo recocido aún se tenga visibilidad hacia el exterior. Consecuente se tiene el espacio de Sala con conexión a la cocina- comedor, y este con con conexión hacia el patio-garage donde se puede acceder al baño.
Para el Primer nivel se mandan todas las área privativas que son dos recamaras que comparten un baño completo, además de una recamara principal con su propio baño completo y espacio de closet. A esto se le agrega una zotehuela de servicios con conexion a azotea por medio de una escalera de caracol.


Planta baja
Primer nivel


Azotea
Primer Nivel
Planta baja

Sala





Cocina - comedor
Casa
Fresnos
Diseño de casa habitación
En un predio de 17.00m x 8.00m dentro de un fraccionamiento cerrado, se proyecta una casa para venta, considerando a solicitud, un promedio de 150.00 m2 de construcción para conseguir un precio competitivo en el mercado, se desplanta esta casa de 148.00 m2 de construcción.

Planimetria 2D en AutocaD
Modelado 3D en Sketchup
Ambientado y renderizado en LUMION


Primer nivel
Para ello desde el garage se proyecta para 2 autos pero sólo uno cubierto con lo que seria el nivel superior, consecuentemente se considera el espacio de sala-comedor con servicio de 1/2 baño, y una cocina separada de este área con una alacena debajo de cubo de escaleras y conexión al patio trasero-jardín.
Para el primer nivel se proyecta lo que seria una recarama y un estudio que de igual manera se podría utilizar como recamara individual si se desea, estos dos compartiendo un baño completo, y como protagonista una recamara principal con amplias dimensiones, closet y baño completo.
Planta baja

_natanaelgr
Casa
Solís
Diseño de casa habitación
En inmueble existente de un nivel construido, se desea realizar una remodelación para adecuar el espacio a un departamento con proyección a construcción de un nivel nuevo sobre el existente.

Planimetria 2D en AutocaD
Modelado 3D en Sketchup
Ambientado y renderizado en LUMION
Planta baja existente
Planta baja propuesta
Primer nivel propuesta

El inmueble existente se encuentra a pie de una calle transitada, por lo cual se desea que se obtenga una privacidad hacia el interior.
Además de que la fachada se llega a afectar demasiado por el sol a la segunda mitad del día.

Para ello se proyecta un muro que divida la calle con el espacio interior, dejando espacios para la iluminación y vegetación. Y como protagonista el manejo de celosías que permitan la visibilidad al exterior, pero interrumpan moderadamente el golpe solar directo.




Casa
Peralta
Diseño de casa habitación
En un terreno accidentado de 15.00m x 10.00m, con una inclinación prolongada, se desea realizar la construcción de una casa que albergará a usuarios que son adultos mayores.

Planimetria 2D en AutocaD
Modelado 3D en Sketchup
Ambientado y renderizado en LUMION


El terreno se conoce con un suelo tipo “A” y considerando como mejor opción para los usuarios una planta sin desniveles, se propone el desplante de columnas y a partir de una losa, el desplante de la casa, la cual cuenta con 2 recamaras, espacio de sala comedor, cocina, baño completo y zotehuela, además de un balcón de descanso con vista al exterior.
Planta baja





Linea 3
Tren Electrico
Galería
Auxiliar de residencia y encargado de estimaciones en obra civil.

Guadalajara, Jalisco.
Cimbrado, vaciado y colado de concreto MR-42 en avenidas de cocheras y talleres, así como guarniciones y banquetas.








Colocación de granito en estaciones a lo largo de la linea.



Trabajos de pailería a lo largo de la linea.




Residence
By Bosque Real
Galería
Residencia y encargado de estimaciones.

Huixquilucan, Estado de México.
Trabajos de albañilerías en Motor lobby.







Trabajos en interiores de acabados para entrega de departamentos, plafones, granitos, mármol, pintura, carpintería.






RH coppel
Galería
Residencia y encargado de estimaciones.

Atlixco, Puebla.
Trabajos de albañilerías, instalaciones eléctricas, hidráulicas, sanitarias, sistemas, AA, acabados, pisos, pintura, herrería, y carpintería



















Coppel Motos
Galería
Residencia y encargado de estimaciones.

Jojutla, Morelos.
Trabajos de albañilerías, instalaciones eléctricas, hidráulicas, sanitarias, sistemas, AA, acabados, pisos, pintura, herrería, y carpintería















_natanaelgr
BBVA
Torre Inxignia
Galería
Residencia y encargado de estimaciones.

Puebla, Puebla.
Trabajos de tablaroca, plafond y pintura.









_natanaelgr